17th Street

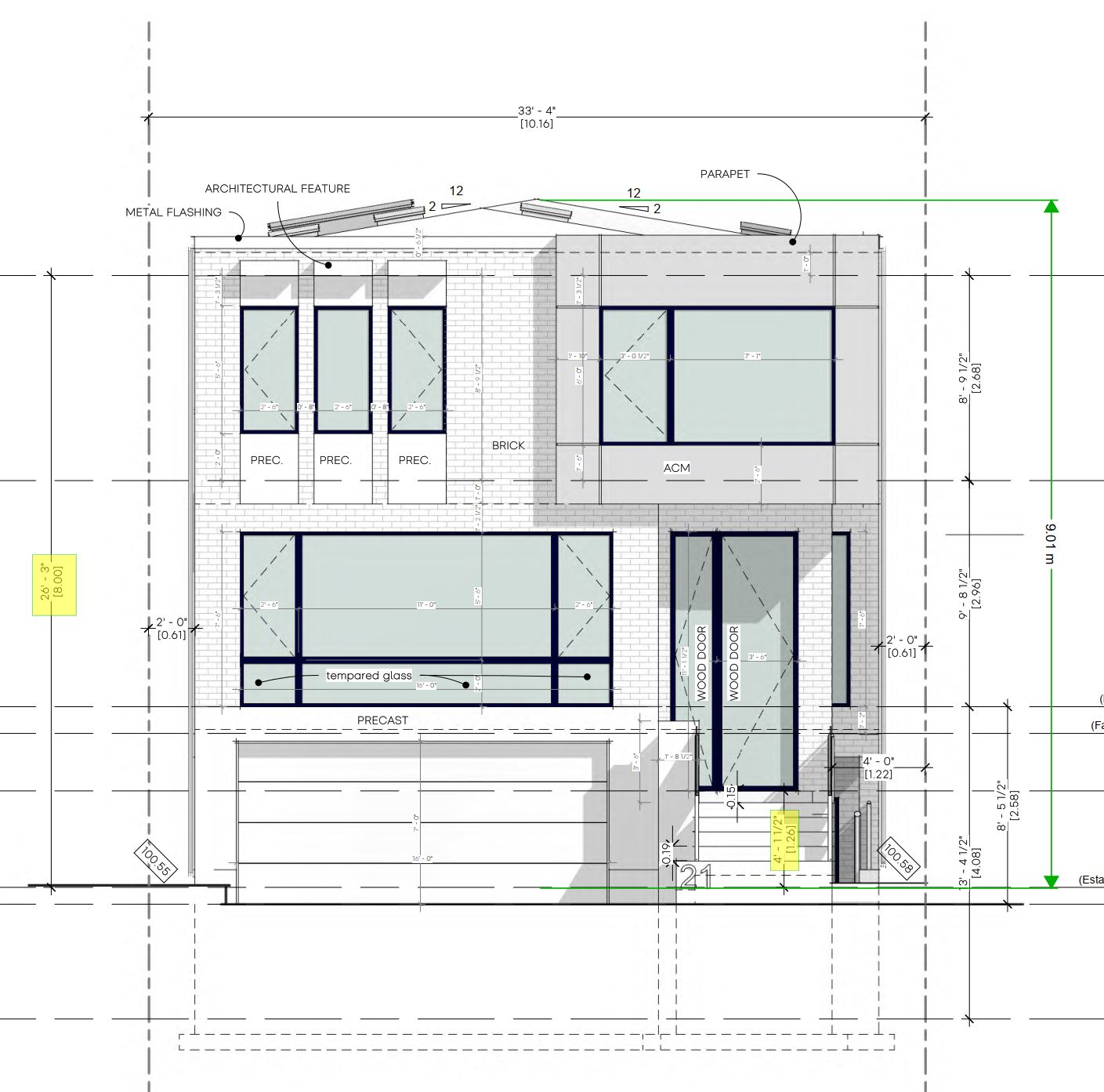
A sleek, modern residence featuring a basement second suite with separate side entry. Despite the narrow 2-foot side setbacks, the design incorporates a 4-foot setback at the walkout level to provide basement access, while maintaining a 2-foot setback on the second floor. In compliance with code requirements, exterior walls within 4 feet of the property line are constructed with a 45-minute fire-resistance rating.
17th Street

Required for fire separation

One of the main challenges of this project was the removal of a city-owned tree located in front of the property. Retaining the tree would have resulted in a significantly narrower driveway, so the owner decided to proceed with obtaining a permit from Urban Forestry for its removal. This process took approximately four months to complete.

Thanks for reaching out to Delvin Dream Homes. Our team will get back to you within one business day to discuss your project and next steps.

If it’s urgent, feel free to give us a quick call at (647) 994‑6010 — we’re here to help!

Talk soon — and thanks again for considering Delvin Dream Homes Ltd. to bring your vision to life.