McGillivray Ave

This project was one of the most unique in its character, with a highly engaged client who had a clear vision and deep understanding of their needs. We held several meetings to refine the spatial layout, and the main elevations underwent a few thoughtful revisions to achieve a well-balanced and cohesive final design.
McGillivray Ave

Main challenges

Stair Design and Construction Challenges
During construction, one of the most technically challenging components was the staircase. For this project, a custom stair system was required, featuring a mono stringer design with a floating landing in the form of a “hockey stick” configuration. To ensure precision and coordination, detailed shop drawings were prepared specifically for the stair assembly and submitted to the stair fabricator. This facilitated the accurate fabrication and installation of the unique stair system, which became a prominent architectural feature of the interior space.

Main challenges

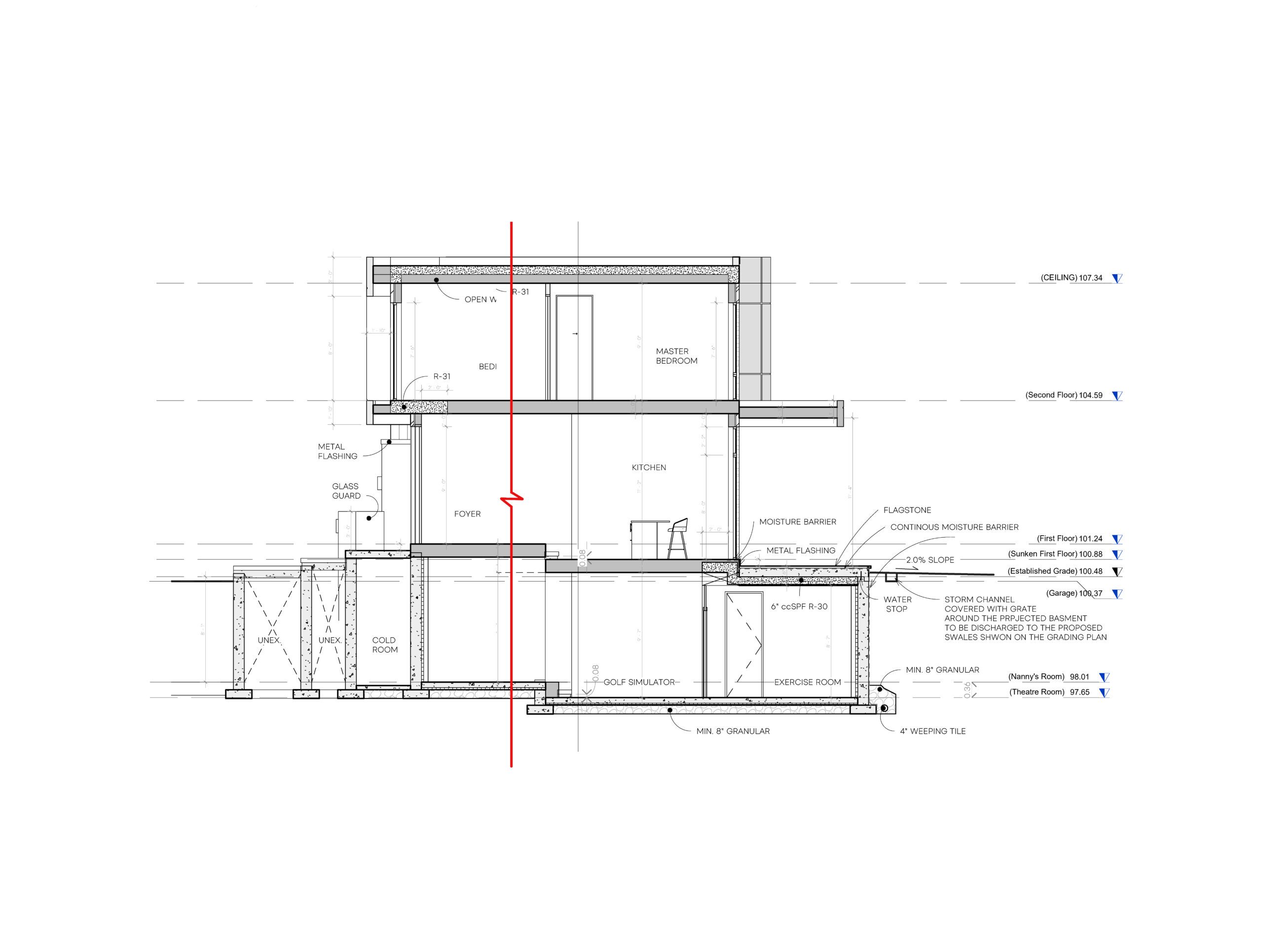
Entrance Grading and Step Configuration
The second major challenge involved determining the number of steps from the front entrance toward the backyard. The goal was to avoid unnecessary excavation while maintaining a generous ceiling height in the family room. Additionally, the **foyer level** had to be carefully coordinated with the front yard grading to eliminate the need for a guardrail at the front porch, ensuring both functional access and a clean architectural appearance.

Thanks for reaching out to Delvin Dream Homes. Our team will get back to you within one business day to discuss your project and next steps.

If it’s urgent, feel free to give us a quick call at (647) 994‑6010 — we’re here to help!

Talk soon — and thanks again for considering Delvin Dream Homes Ltd. to bring your vision to life.